Домик с верандой - Модель №3 "Фира"
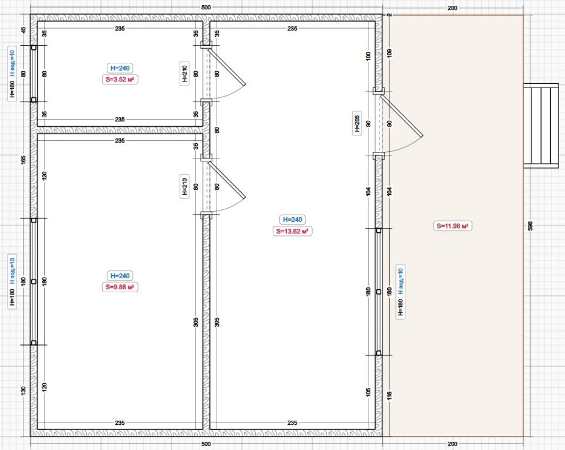
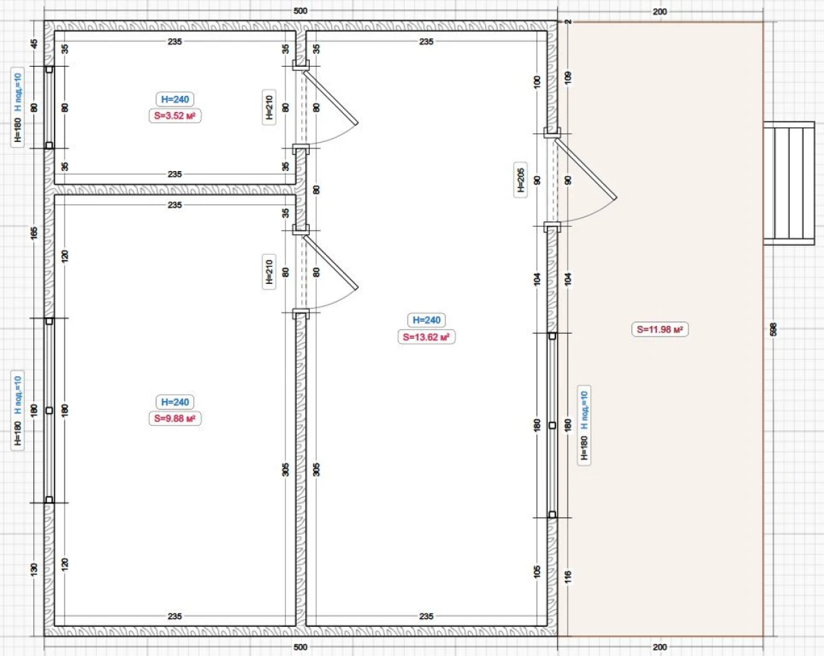
Размер: 6.0x3.0м. с верандой 6.0х2.0м. = 30кв.м.
Комплектация - БАЗА
Размер: 6.0x3.0м. с верандой 6.0х2.0м. = 30кв.м.
Комплектация - БАЗА
Высота 3.0/2.40м.
Окно ПВХ однокам. 120/150см. 2шт.
Дверь железная 90/205см. (толщина полотна 50мм.) 1шт.
Каркас: Брус 40/100мм.
Отделка снаружи: Имитация бруса AB класса.
Ветро-влагозащита.
Чистовой пол: Обрезная доска 23х150мм.
Кровля: Оцинкованный профлист (цвет на выбор - коричневый, темно-серый, зеленый, красный), Ветровики.
Фундамент:
Бетонные блоки 400х200х200мм. - 12шт.
Рубероид на бетонные блоки.
Деревянные полозья 100/150мм.
Обработка деревянных полозьев противопожарным антисептиком.
Окно ПВХ однокам. 120/150см. 2шт.
Дверь железная 90/205см. (толщина полотна 50мм.) 1шт.
Каркас: Брус 40/100мм.
Отделка снаружи: Имитация бруса AB класса.
Ветро-влагозащита.
Чистовой пол: Обрезная доска 23х150мм.
Кровля: Оцинкованный профлист (цвет на выбор - коричневый, темно-серый, зеленый, красный), Ветровики.
Фундамент:
Бетонные блоки 400х200х200мм. - 12шт.
Рубероид на бетонные блоки.
Деревянные полозья 100/150мм.
Обработка деревянных полозьев противопожарным антисептиком.
Домик с верандой - Модель №3 "Фира"
Размер: 6.0x4.0м. с верандой 6.0х2.0м. = 36кв.м.
Комплектация - БАЗА
Размер: 6.0x4.0м. с верандой 6.0х2.0м. = 36кв.м.
Комплектация - БАЗА
Высота 3.0/2.40м.
Окно ПВХ однокам. 120/150см. 2шт.
Дверь железная 90/205см. (толщина полотна 50мм.) - 1шт.
Каркас: Брус 40/100мм.
Отделка снаружи: Имитация бруса AB класса.
Ветро-влагозащита.
Чистовой пол: Обрезная доска 23х150мм.
Кровля: Оцинкованный профлист (цвет на выбор - коричневый, темно-серый, зеленый, красный), Ветровики.
Фундамент:
Бетонные блоки 400х200х200мм. - 12шт.
Рубероид на бетонные блоки.
Деревянные полозья 100/150мм.
Обработка деревянных полозьев противопожарным антисептиком.
Окно ПВХ однокам. 120/150см. 2шт.
Дверь железная 90/205см. (толщина полотна 50мм.) - 1шт.
Каркас: Брус 40/100мм.
Отделка снаружи: Имитация бруса AB класса.
Ветро-влагозащита.
Чистовой пол: Обрезная доска 23х150мм.
Кровля: Оцинкованный профлист (цвет на выбор - коричневый, темно-серый, зеленый, красный), Ветровики.
Фундамент:
Бетонные блоки 400х200х200мм. - 12шт.
Рубероид на бетонные блоки.
Деревянные полозья 100/150мм.
Обработка деревянных полозьев противопожарным антисептиком.
Домик с верандой - Модель №3 "Фира"
Размер: 6.0x6.0м. с верандой 6.0х2.0м. = 48кв.м.
Комплектация - БАЗА
Размер: 6.0x6.0м. с верандой 6.0х2.0м. = 48кв.м.
Комплектация - БАЗА
Высота 3.0/2.40м.
Окно ПВХ однокам. 120/150см. 3шт.
Дверь железная 90/205см. (толщина полотна 50мм.) 1шт.
Каркас: Брус 40/100мм.
Отделка снаружи: Имитация бруса AB класса.
Ветро-влагозащита.
Перегородка без утепления (обшивка с одной стороны) - 9м.
Дверь филенчатая - 2шт.
Чистовой пол: Обрезная доска 23х150мм.
Кровля: Оцинкованный профлист (цвет на выбор - коричневый, темно-серый, зеленый, красный), Ветровики.
Фундамент:
Бетонные блоки 400х200х200мм. - 15шт.
Рубероид на бетонные блоки.
Деревянные полозья 100/150мм.
Обработка деревянных полозьев противопожарным антисептиком.
Окно ПВХ однокам. 120/150см. 3шт.
Дверь железная 90/205см. (толщина полотна 50мм.) 1шт.
Каркас: Брус 40/100мм.
Отделка снаружи: Имитация бруса AB класса.
Ветро-влагозащита.
Перегородка без утепления (обшивка с одной стороны) - 9м.
Дверь филенчатая - 2шт.
Чистовой пол: Обрезная доска 23х150мм.
Кровля: Оцинкованный профлист (цвет на выбор - коричневый, темно-серый, зеленый, красный), Ветровики.
Фундамент:
Бетонные блоки 400х200х200мм. - 15шт.
Рубероид на бетонные блоки.
Деревянные полозья 100/150мм.
Обработка деревянных полозьев противопожарным антисептиком.
Домик с верандой - Модель №3 "Фира"
Размер: 6.0x5.0м. с верандой 6.0х2.0м. = 42кв.м.
Комплектация - БАЗА
Размер: 6.0x5.0м. с верандой 6.0х2.0м. = 42кв.м.
Комплектация - БАЗА
Высота 3.0/2.40м.
Окно ПВХ однокам. 120/150см. 3шт.
Дверь железная 90/205см. (толщина полотна 50мм.) 1шт.
Каркас: Брус 40/100мм.
Отделка снаружи: Имитация бруса AB класса.
Ветро-влагозащита.
Перегородка без утепления (обшивка с одной стороны) - 9м.
Дверь филенчатая - 2шт.
Чистовой пол: Обрезная доска 23х150мм.
Кровля: Оцинкованный профлист (цвет на выбор - коричневый, темно-серый, зеленый, красный), Ветровики.
Фундамент:
Бетонные блоки 400х200х200мм. - 15шт.
Рубероид на бетонные блоки.
Деревянные полозья 100/150мм.
Обработка деревянных полозьев противопожарным антисептиком.
Окно ПВХ однокам. 120/150см. 3шт.
Дверь железная 90/205см. (толщина полотна 50мм.) 1шт.
Каркас: Брус 40/100мм.
Отделка снаружи: Имитация бруса AB класса.
Ветро-влагозащита.
Перегородка без утепления (обшивка с одной стороны) - 9м.
Дверь филенчатая - 2шт.
Чистовой пол: Обрезная доска 23х150мм.
Кровля: Оцинкованный профлист (цвет на выбор - коричневый, темно-серый, зеленый, красный), Ветровики.
Фундамент:
Бетонные блоки 400х200х200мм. - 15шт.
Рубероид на бетонные блоки.
Деревянные полозья 100/150мм.
Обработка деревянных полозьев противопожарным антисептиком.
Домик с верандой - Модель №3 "Фира"
Размер: 6.0x3.0м. с верандой 6.0х2.0м. = 30кв.м.
Комплектация - КОМФОРТ
Размер: 6.0x3.0м. с верандой 6.0х2.0м. = 30кв.м.
Комплектация - КОМФОРТ
Высота 3.0/2.40м.
Окно ПВХ однокам. 120/150см. 2шт.
Дверь железная 90/205см. (толщина полотна 50мм.) 1шт.
Каркас: Брус 40/100мм.
Отделка снаружи: Имитация бруса AB класса.
Утепление: Ветро-влагозащита, Утеплитель базальтовый ThermoWool 100мм., Пароизоляция Утепление в круг (пол, стены, потолок)
Отделка внутри: Вагонка AB класса
Наличники на окна и двери
Черновой пол: Обрезная доска 23х150мм
Чистовой пол: ОСБ 15мм
Чистовой пол на веранде: Струганная доска 35мм.
Кровля: Оцинкованный профлист (цвет на выбор - коричневый, темно-серый, зеленый, красный), Ветровики.
Фундамент:
Бетонные блоки 400х200х200мм. - 12шт.
Рубероид на бетонные блоки.
Деревянные полозья 100/150мм.
Обработка деревянных полозьев противопожарным антисептиком.
Подарок: Сетка от грызунов, Ступени шириной до 2м.
Окно ПВХ однокам. 120/150см. 2шт.
Дверь железная 90/205см. (толщина полотна 50мм.) 1шт.
Каркас: Брус 40/100мм.
Отделка снаружи: Имитация бруса AB класса.
Утепление: Ветро-влагозащита, Утеплитель базальтовый ThermoWool 100мм., Пароизоляция Утепление в круг (пол, стены, потолок)
Отделка внутри: Вагонка AB класса
Наличники на окна и двери
Черновой пол: Обрезная доска 23х150мм
Чистовой пол: ОСБ 15мм
Чистовой пол на веранде: Струганная доска 35мм.
Кровля: Оцинкованный профлист (цвет на выбор - коричневый, темно-серый, зеленый, красный), Ветровики.
Фундамент:
Бетонные блоки 400х200х200мм. - 12шт.
Рубероид на бетонные блоки.
Деревянные полозья 100/150мм.
Обработка деревянных полозьев противопожарным антисептиком.
Подарок: Сетка от грызунов, Ступени шириной до 2м.
Домик с верандой - Модель №3 "Фира"
Размер: 6.0x4.0м. с верандой 6.0х2.0м. = 36кв.м.
Комплектация - КОМФОРТ
Размер: 6.0x4.0м. с верандой 6.0х2.0м. = 36кв.м.
Комплектация - КОМФОРТ
Высота 3.0/2.40м.
Окно ПВХ однокам. 120/150см. 2шт.
Дверь железная 90/205см. (толщина полотна 50мм.) 1шт.
Каркас: Брус 40/100мм.
Отделка снаружи: Имитация бруса AB класса.
Утепление: Ветро-влагозащита, Утеплитель базальтовый ThermoWool 100мм., Пароизоляция Утепление в круг (пол, стены, потолок)
Отделка внутри: Вагонка AB класса
Наличники на окна и двери
Черновой пол: Обрезная доска 23х150мм
Чистовой пол: ОСБ 15мм
Чистовой пол на веранде: Струганная доска 35мм.
Кровля: Оцинкованный профлист (цвет на выбор - коричневый, темно-серый, зеленый, красный), Ветровики.
Фундамент:
Бетонные блоки 400х200х200мм. - 12шт.
Рубероид на бетонные блоки.
Деревянные полозья 100/150мм.
Обработка деревянных полозьев противопожарным антисептиком.
Подарок: Сетка от грызунов, Ступени шириной до 2м.
Окно ПВХ однокам. 120/150см. 2шт.
Дверь железная 90/205см. (толщина полотна 50мм.) 1шт.
Каркас: Брус 40/100мм.
Отделка снаружи: Имитация бруса AB класса.
Утепление: Ветро-влагозащита, Утеплитель базальтовый ThermoWool 100мм., Пароизоляция Утепление в круг (пол, стены, потолок)
Отделка внутри: Вагонка AB класса
Наличники на окна и двери
Черновой пол: Обрезная доска 23х150мм
Чистовой пол: ОСБ 15мм
Чистовой пол на веранде: Струганная доска 35мм.
Кровля: Оцинкованный профлист (цвет на выбор - коричневый, темно-серый, зеленый, красный), Ветровики.
Фундамент:
Бетонные блоки 400х200х200мм. - 12шт.
Рубероид на бетонные блоки.
Деревянные полозья 100/150мм.
Обработка деревянных полозьев противопожарным антисептиком.
Подарок: Сетка от грызунов, Ступени шириной до 2м.
Домик с верандой - Модель №3 "Фира"
Размер: 6.0x5.0м. с верандой 6.0х2.0м. = 42кв.м.
Комплектация - КОМФОРТ
Размер: 6.0x5.0м. с верандой 6.0х2.0м. = 42кв.м.
Комплектация - КОМФОРТ
Высота 3.0/2.40м.
Окно ПВХ однокам. 120/150см. 3шт.
Дверь железная 90/205см. (толщина полотна 50мм.) 1шт.
Каркас: Брус 40/100мм.
Отделка снаружи: Имитация бруса AB класса.
Утепление: Ветро-влагозащита, Утеплитель базальтовый ThermoWool 100мм., Пароизоляция Утепление в круг (пол, стены, потолок)
Отделка внутри: Вагонка AB класса
Перегородка без утепления - 9м.
Дверь филенчатая - 2шт.
Наличники на окна и двери
Черновой пол: Обрезная доска 23х150мм
Чистовой пол: ОСБ 15мм
Чистовой пол на веранде: Струганная доска 35мм.
Кровля: Оцинкованный профлист (цвет на выбор - коричневый, темно-серый, зеленый, красный), Ветровики.
Фундамент:
Бетонные блоки 400х200х200мм. - 15шт.
Рубероид на бетонные блоки.
Деревянные полозья 100/150мм.
Обработка деревянных полозьев противопожарным антисептиком.
Подарок: Сетка от грызунов, Ступени шириной до 2м.
Окно ПВХ однокам. 120/150см. 3шт.
Дверь железная 90/205см. (толщина полотна 50мм.) 1шт.
Каркас: Брус 40/100мм.
Отделка снаружи: Имитация бруса AB класса.
Утепление: Ветро-влагозащита, Утеплитель базальтовый ThermoWool 100мм., Пароизоляция Утепление в круг (пол, стены, потолок)
Отделка внутри: Вагонка AB класса
Перегородка без утепления - 9м.
Дверь филенчатая - 2шт.
Наличники на окна и двери
Черновой пол: Обрезная доска 23х150мм
Чистовой пол: ОСБ 15мм
Чистовой пол на веранде: Струганная доска 35мм.
Кровля: Оцинкованный профлист (цвет на выбор - коричневый, темно-серый, зеленый, красный), Ветровики.
Фундамент:
Бетонные блоки 400х200х200мм. - 15шт.
Рубероид на бетонные блоки.
Деревянные полозья 100/150мм.
Обработка деревянных полозьев противопожарным антисептиком.
Подарок: Сетка от грызунов, Ступени шириной до 2м.
Домик с верандой - Модель №3 "Фира"
Размер: 6.0x6.0м. с верандой 6.0х2.0м. = 48кв.м.
Комплектация - КОМФОРТ
Размер: 6.0x6.0м. с верандой 6.0х2.0м. = 48кв.м.
Комплектация - КОМФОРТ
Высота 3.0/2.40м.
Окно ПВХ однокам. 120/150см. 3шт.
Дверь железная 90/205см. (толщина полотна 50мм.) 1шт.
Каркас: Брус 40/100мм.
Отделка снаружи: Имитация бруса AB класса.
Утепление: Ветро-влагозащита, Утеплитель базальтовый ThermoWool 100мм., Пароизоляция Утепление в круг (пол, стены, потолок)
Отделка внутри: Вагонка AB класса
Перегородка без утепления - 9м.
Дверь филенчатая - 2шт.
Наличники на окна и двери
Черновой пол: Обрезная доска 23х150мм
Чистовой пол: ОСБ 15мм
Чистовой пол на веранде: Струганная доска 35мм.
Кровля: Оцинкованный профлист (цвет на выбор - коричневый, темно-серый, зеленый, красный), Ветровики.
Фундамент:
Бетонные блоки 400х200х200мм. - 15шт.
Рубероид на бетонные блоки.
Деревянные полозья 100/150мм.
Обработка деревянных полозьев противопожарным антисептиком.
Подарок: Сетка от грызунов, Ступени шириной до 2м.
Окно ПВХ однокам. 120/150см. 3шт.
Дверь железная 90/205см. (толщина полотна 50мм.) 1шт.
Каркас: Брус 40/100мм.
Отделка снаружи: Имитация бруса AB класса.
Утепление: Ветро-влагозащита, Утеплитель базальтовый ThermoWool 100мм., Пароизоляция Утепление в круг (пол, стены, потолок)
Отделка внутри: Вагонка AB класса
Перегородка без утепления - 9м.
Дверь филенчатая - 2шт.
Наличники на окна и двери
Черновой пол: Обрезная доска 23х150мм
Чистовой пол: ОСБ 15мм
Чистовой пол на веранде: Струганная доска 35мм.
Кровля: Оцинкованный профлист (цвет на выбор - коричневый, темно-серый, зеленый, красный), Ветровики.
Фундамент:
Бетонные блоки 400х200х200мм. - 15шт.
Рубероид на бетонные блоки.
Деревянные полозья 100/150мм.
Обработка деревянных полозьев противопожарным антисептиком.
Подарок: Сетка от грызунов, Ступени шириной до 2м.
Выберите дом по душе
Домик "Фира" №7 Базовый
Универсальный дом с верандой, от 18 до 36 кв метров. Веранды - 12 кв. метров.
-
Высота 3.0/2.40м.
-
Окно ПВХ однокам. 120/150см. 2шт.
-
Дверь железная 90/205см. (толщина полотна 50мм.) 1шт.
-
Каркас: Брус 40/100мм.
-
Отделка снаружи: Имитация бруса AB класса.
-
Ветро-влагозащита.
-
Чистовой пол: Обрезная доска 23х150мм.
-
Кровля: Оцинкованный профлист (цвет на выбор - коричневый, темно-серый, зеленый, красный), Ветровики
-
Бетонные блоки 400х200х200мм. - 12шт.
-
Рубероид на бетонные блоки.
-
Деревянные полозья 100/150мм.
-
Обработка деревянных полозьев противопожарным антисептиком.
-
6х3 с верандой 6х2(30кв метров)
-
6х4 с верандой 6х2(36кв метров)
-
6х5 с верандой 6х2(42кв метров)
-
6х6 с верандой 6х2(48кв метров)
Домик "Фира" №7 Комфорт
Универсальный дом с верандой, от 30 до 48 кв метров.
-
Высота 3.0/2.40м.
-
Окно ПВХ однокам. 120/150см. 3шт.
-
Дверь железная 90/205см. (толщина полотна 50мм.) 1шт.
-
Каркас: Брус 40/100мм.
-
Отделка снаружи: Имитация бруса AB класса.
-
Утепление: Ветро-влагозащита, Утеплитель базальтовый ThermoWool 100мм., Пароизоляция Утепление в круг (пол, стены, потолок)
-
Отделка внутри: Вагонка AB класса
-
Наличники на окна и двери
-
Черновой пол: Обрезная доска 23х150мм
-
Чистовой пол: ОСБ 15мм
-
Чистовой пол на веранде: Струганная доска 35мм.
-
Кровля: Оцинкованный профлист (цвет на выбор - коричневый, темно-серый, зеленый, красный), Ветровики.
-
Бетонные блоки 400х200х200мм
-
Рубероид на бетонные блоки.
-
Деревянные полозья 100/150мм.
-
Обработка деревянных полозьев противопожарным антисептиком.
-
Подарок: Сетка от грызунов, Ступени шириной до 2м.
-
6х3 с верандой 6х2(30кв метров)
-
6х4 с верандой 6х2(36кв метров)
-
6х5 с верандой 6х2(42кв метров)
-
6х6 с верандой 6х2(48кв метров)